40 m² Tek Katlı Prefabrik Ev

Deneme

40 m² Tek Katlı Prefabrik Ev

Prefabrik evlerimiz yangına dayanıklı A1 sınıfı yanmaz malzemelerden üretilmektedir ve ekonomiktirler. Isı dengesi kullandığımız teknik malzemelerimizin yanı sıra PVC pencerelerle de desteklenmektedir. Her bölgenin iklimine uygun ve statik hesaplarıyla birlikte prefabrik evlerimiz müşterilerimize teslim edilmektedir. Müşterilerimizin değişiklik talepleri doğrultusunda mimari projeler revize edilerek hayata geçirilmektedir.

Teknik Özellikler ve Oda Dağılımı

Toplam Alan45 m2
Oda Sayısı2+1
Salon14 m2
Mutfak5 m2
Yatak Odası 110 m2
Yatak Odası 26 m2
Banyo4 m2
Veranda5 m2

Salon bölümü aydınlık ve ferah bir kullanım sunarken, iki ayrı yatak odası hem çocuklu aileler hem de misafir ağırlamak isteyen kullanıcılar için idealdir. Ayrı konumlandırılan mutfak, yemek hazırlıklarını kolaylaştırır ve ev içi düzeni artırır.

Yapısal Özellikler ve Malzeme Detayları

  • Çatı: Elektrostatik boyalı trapez sac
  • Dış Cephe: Betopan kaplama
  • Duvar Kalınlıkları: İç 6 cm, Dış 10 cm
  • Pencereler: Kurşunsuz PVC, çift cam
  • Yalıtım: Isı ve ses yalıtımı ile dört mevsim konfor

45 m2 Prefabrik Ev Sahibi Olmanın Avantajları

  • Uygun maliyetle konut sahibi olma imkânı
  • Hızlı kurulum süreci (ortalama 3-4 gün)
  • Taşınabilir ve sökülüp tekrar kurulabilir yapı
  • Estetik dış görünüm ve özelleştirilebilir iç tasarım
  • Ruhsatlı alanlara uygun projelendirme desteği

Özellikle şehir dışında arsa sahibi olanlar için bu model, düşük maliyetle kalıcı bir çözüm sunar.

Kullanım Alanları

  • Bahçeli arazilerde kalıcı konut
  • Yazlık veya hobi evi
  • Ailelere özel müstakil ev seçeneği
  • Tarla ve bağ evi olarak kullanıma uygun

Bölgesel Uygunluk ve Kullanım Önerisi

Bu model, özellikle iç ve batı bölgelerde yoğun olarak tercih edilmektedir. Edirne prefabrik ev projeleri içinde, sınır bölgesindeki arazilere kalıcı çözüm arayan kullanıcılar için öne çıkmaktadır. Ayrıca Yalova prefabrik ev modelleri arasında doğal yaşamla uyumlu yapısıyla sıkça tercih edilmektedir.

Teslimat ve Kurulum Bilgileri

  • Türkiye genelinde teslimat ve kurulum
  • Kurulum süresi: Ortalama 3-4 gün
  • Zemin hazırlığı konusunda teknik destek sağlanabilir
  • Anahtar teslim veya iskelet sistem seçenekleri mevcuttur
Bina iç görsellerimiz, yaşam alanlarımızın modern tasarımını, ferah iç mekan düzenini ve yüksek kalite standartlarını yansıtmaktadır. Her detayda estetik, konfor ve işlevselliği bir araya getirerek yaşam alanlarınıza ilham veriyoruz.
Bina iç görsellerimiz, projelerimizin estetik anlayışını ve kaliteli işçiliğini en net şekilde gözler önüne sermektedir. Modern tasarım çizgileriyle oluşturulan iç mekanlarımız, konforu ve zarafeti bir arada sunmaktadır.
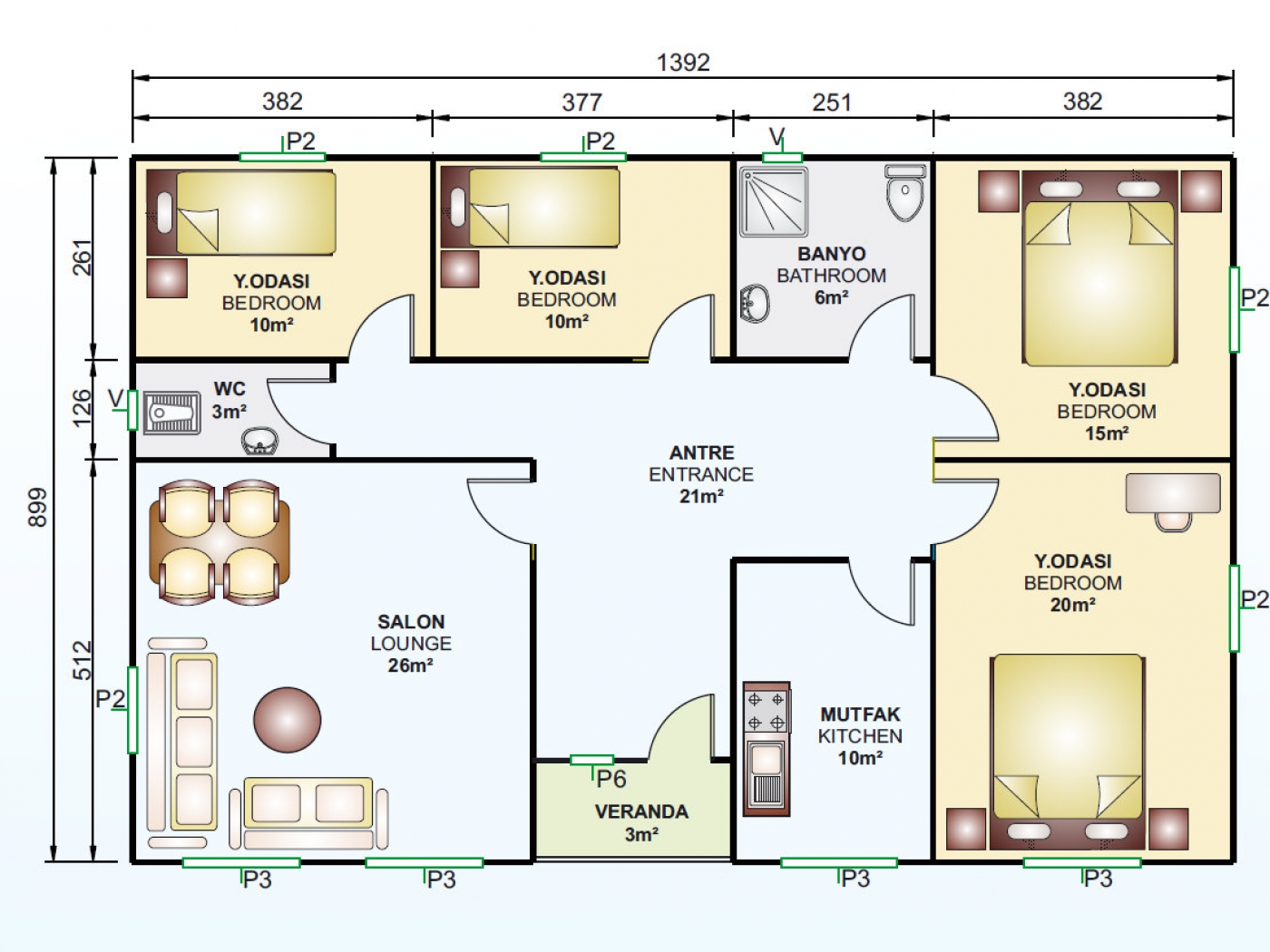
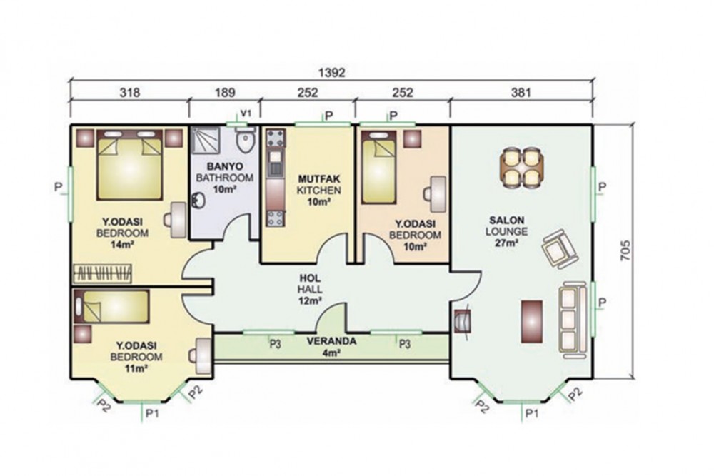
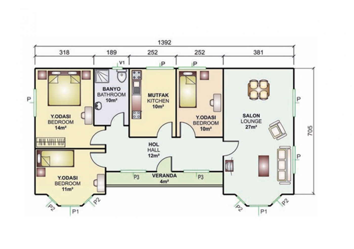
Projelerimizin tüm detaylarını inceleyebileceğiniz kat planlarımız, yaşam alanlarınızı en verimli şekilde tasarlamanız için rehber niteliğindedir. Fonksiyonel, estetik ve modern çözümlerle her metrekareyi maksimum konforla buluşturuyoruz.